30264人已浏览 时间 : 2021-04-18 22:42:34
导语:
“神州优车集团是中国出行和汽车领域**的综合服务平台,旗下包含神州租车、神州专车、神州买买车、神州车闪贷四大业务。艾迪尔近期为神州优车集团设计并改造了其位于北京的新总部基地UCAR PARK,改造后的新总部将承载更多功能,满足同心多元化的需求,吸引并容纳更多人才。

新总部由原金五星购物广场改造而来,改造前的原金五星购物广场是一栋三联厂房,既有建筑情况十分复杂,外部立面被各种违章广告牌覆盖,内部厂房纵深达到80米,采光昏暗,空间凌乱,建筑西侧原本拥有的开阔广场,也由于种种违章加建而难以利用。
▲清空后的建筑
改造后的神州优车集团新总部,建筑面积20000平方米,整体结构形式为钢架结构,共2层,局部有夹层,共可容纳将近1700名神州人同时在此办公。艾迪尔对原有厂房空间进行了自外而内的梳理和改造,建筑外立面保留了原有的钢结构框架,整体覆盖黑色镂空钢板,并穿插了两个盒子体量的建筑空间,一层是咖啡厅,二层是悬挑出来的走廊,通透的玻璃材质让这两个盒子体量的空间就像广告橱窗一样,对外展示着员工忙碌工作的身影。


从位于建筑西侧的正门进入神州优车集团新总部,正对入口处是一个通高的巨大中庭,顶部天光倾泻而下,笼罩在中庭的水景上,一帘瀑布自上而下泻入水池。中庭两侧是由铁制和木制集装箱打造的展示会议室,穿插挑出到水面上,使置身其中的人能够享受到中庭的景观。




▲中庭
▲悬挑会议室
入口右侧的咖啡厅,室内外景观在此得到**的展示和融合。

▲咖啡厅

▲前台接待区
建筑首层空间被闸机分成两部分:对外的展示接待空间和对内的办公空间。闸机后面是一条主要道路,被称为“主街”,整个办公区的空间回路就是由这条主街和不同的分支路线所构成,它们串起了不同大小、功能、风格的空间,而这些空间共同形成了一个巨大的超级互联办公体系,就好像大脑神经系统一样,各种信息每天都会通过这个超级系统传递流转。

▲茶歇区
主街正对的是“神州大桥”,红色的桥身在灯光的辉映下光彩夺目。桥边的大台阶及攀岩壁则承担着重要的培训和交流功能。



▲交流培训区
主健身房、快乐乒乓房和瑜伽房通透的玻璃墙面让这个区域成为了空间里*为精彩的一部分,室内鲜艳的色彩、温暖的灯光和挥洒汗水的热情,让健身区域充满了活力和魅力。

▲乒乓球室


▲健身房
*重要的部分是超级互联办公区域,几处楼板的打通,不但引入了自然天光,更带来了错层连通的无限可能。在这里不计其数的连桥、隧道、滑梯、索桥、绳网,串联起公司各个部门,也让穿行其间的过程不再枯燥乏味。

▲办公区

▲连桥
▲滑梯
▲会议室
▲休息洽谈区
位于建筑顶部的**管理区域,采用了合院式布局,办公室和会议室围绕着一个小小的院落空间布置,院中有怡人的绿植,优雅的茶台,富于禅意的枯山水。天光从屋顶开窗处倾泻而下,整个小院阳光明媚,让外来客人能有一个安静的交流洽谈场所。
▲高管区

▲楼层简图
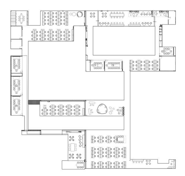
▲首层平面图

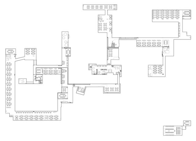
▲首层夹层平面图

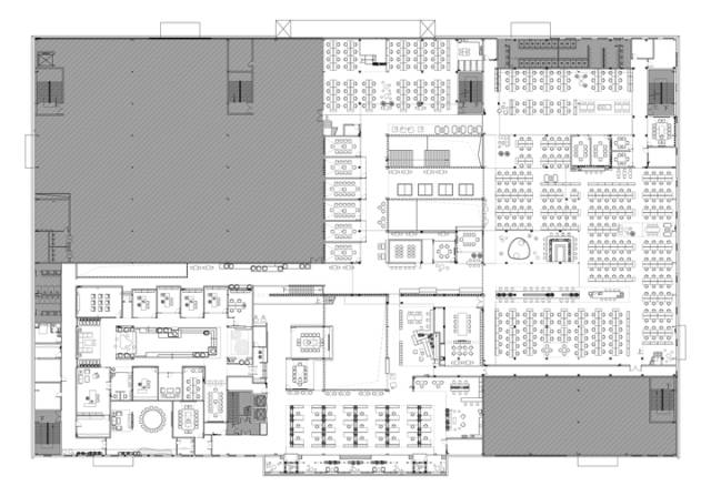
▲二层平面图

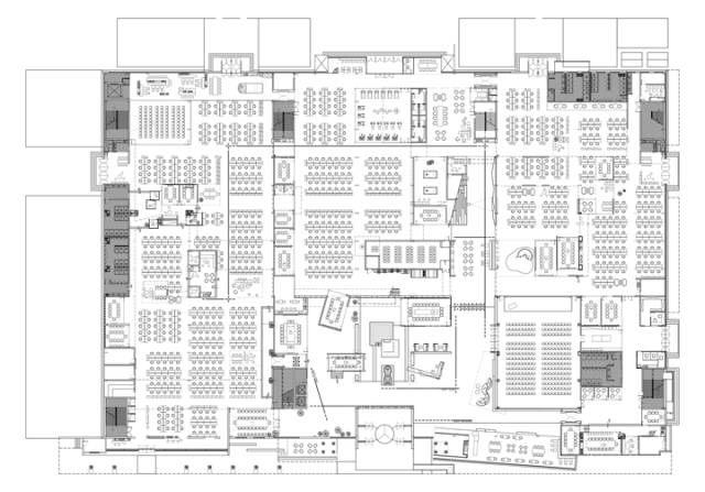
▲二层夹层平面图
最新评论
在线客服
官方微信
联系电话
返回顶部